Property Overview
Eridge Road
TUNBRIDGE WELLS, KENT
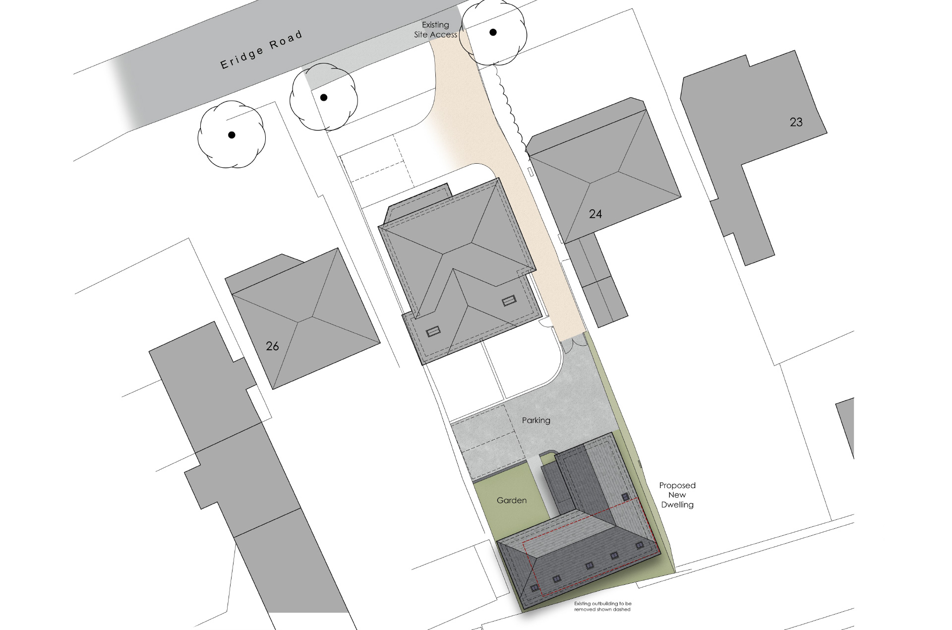
Affinity Homes Ltd is offering purchasers a unique opportunity to design their own home using their ‘Design and Build’ service. The development currently has planning permission (Ref: 22/02878/FULL) for a 4 bedroom detached house with parking in a gated secluded plot, yet still within 0.5 of a mile from the Pantiles and 0.7 of a mile from the mainline station for London.
This type of opportunity does not come around very often and will give complete autonomy to a purchaser when making decisions on internal layouts, specification and wall and floor choices. This type of service comes complete with a dedicated project manager to guide you through the process and make sure you get the home you have always dreamed of.
Features
- Design and Build
- Secluded Plot
- Gated development
- High Specification
- Parking
- 10 Year New Build Warranty


